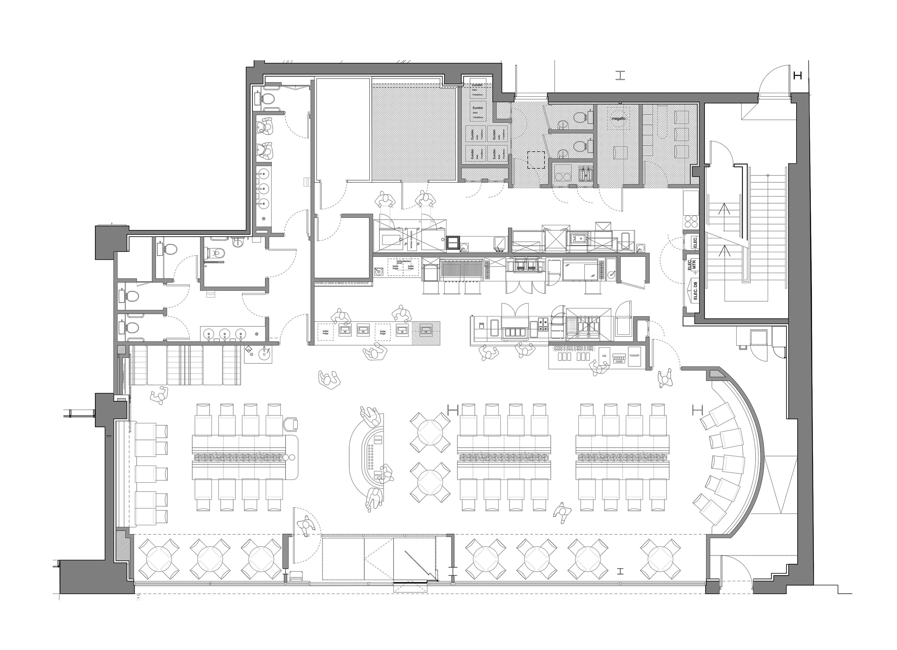
This new-build restaurant occupies the ground floor of a commercial building directly opposite the Glasgow Central train station. A strong, symmetrical floor plan is set off by the organic, circular pattern that dominates the design theme. The circular motif of the ceiling installation was repeated on the internal shopfront surround by masking and rusting steel sheets and on the rear wall through a combination of CNC cut reclaimed timber and ceramic tiles. In order to achieve considerable value engineering, the ceiling feature, originally designed in metal, was cleverly constructed with MDF and copper- leafed by an artist to achieve the desired affect. Furnishings consist of chairs handcrafted in South Africa and long banquette seating offering maximum flexibility for table groupings. The result is a warm, inviting space with a dynamic patternality throughout. Andy was the principal designer for all phases of this project.
Photos: John Reid https://www.arch.photos
Photos: John Reid https://www.arch.photos








